With the CAD drawing and design services of Royal Iron and Steel Group, transform your ideas into precise and manufacturable project models.
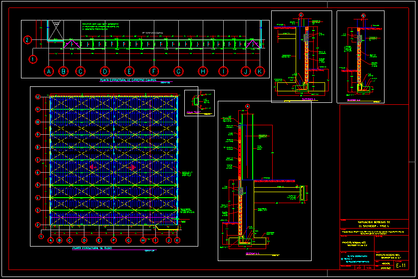
In the field of steel structure engineering, drawings are the core link connecting design concepts, manufacturing, and on-site installation. Our company has been deeply involved in this field for many years, focusing on precision, efficiency, and standardization. We provide full-process 2D construction drawings, 3D modeling, and detailed design services for various steel structure projects, breaking down the barriers between design and construction and facilitating efficient project implementation.
Our services are centered on computer-aided design (CAD) for steel structures, accurately covering both 2D and 3D design scenarios. Balancing professionalism and practicality, our services are suitable for various steel structure projects, including industrial plants, commercial buildings, bridge supports, and stadium stands. Whether it's the design of standard components or the refinement of complex nodes, we can provide customized solutions.
Send Your Requirements to Get More Information
Steel Structure Frame Design
Industrial Steel Buildings & Workshops
Connection & Joint Detailing
Steel Structure Clash Detection & Optimization
Pre-Fabrication & Modular Steel Structures
Steel Structure Installation Simulation
Computer-aided design (CAD) for steel structures is a core preliminary step in steel structure engineering. The accuracy of the drawings directly determines the safety, economy, and construction efficiency of the project. Our company provides high-quality 2D and 3D drawing design services for various steel structure projects with professional design capabilities, rigorous service attitude, and efficient delivery. We help clients reduce project costs, shorten construction cycles, and ensure project quality, working together to achieve new developments in the steel structure engineering field.
ROYAL GROUP
Address
Kangsheng development industry zone,
Wuqing district, Tianjin city, China.
Hours
Monday-Sunday: 24-hour Service
